Nhưng do điều kiện kinh tế, gia đình chỉ có thể cải tạo lại nhà, dự tính sẽ ở trong vòng khoảng 5 - 10 năm tới. Tôi muốn ngôi nhà có 2 phòng ngủ, phòng khách, phòng bếp và có không gian nghỉ ngơi cho ông bà thỉnh thoảng lên chơi với cháu.
Rất mong được kiến trúc sư tư vấn phương án phù hợp. Chân thành cảm ơn!
Kiến trúc sư tư vấn:
Dựa theo những thông tin mà bạn cung cấp về phong cách thiết kế và nhu cầu sử dụng của gia đình, chúng tôi xin đưa ra phương án mặt bằng tư vấn thiết kế như sau:

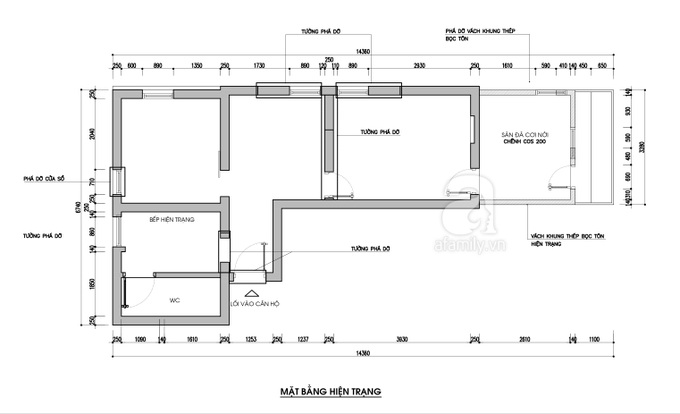
Mặt bằng hiện trạng.

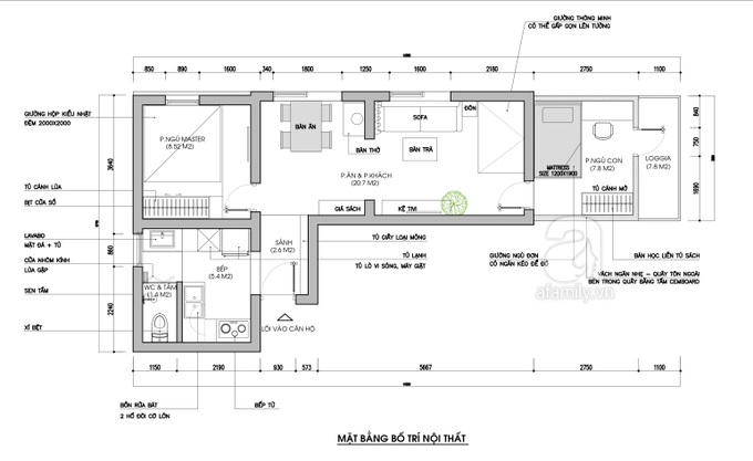
Mặt bằng cải tạo (đã bố trí nội thất).
Bước vào nhà là không gian sảnh, vì diện tích khá nhỏ nên KTS đã bố trí hệ tủ giày siêu mỏng có kết hợp ngăn chứa đồ. Từ vị trí này chúng ta có thể thấy không gian bếp và hệ tủ lớn kết hợp tủ lavabo với đầy đủ công năng và nhu cầu sử dụng của gia đình. Không gian được thiết kế trẻ trung với màu sắc hiện đại kết hợp giữa gam màu trắng và màu gỗ sồi. Đối diện tủ là phòng vệ sinh chung của gia đình.

Hệ tủ giày siêu mỏng khu vực sảnh.

Tủ bếp nhỏ xinh với gam màu trắng hiện đại.

Hệ tủ kết hợp nhiều công năng đáp ứng được nhu cầu sử dụng và lưu trữ của gia đình.

Phòng vệ sinh nhỏ với điểm nhấn là mảng tường gạch bông.
Khu vực phía bên trong KTS đã lựa chọn không gian rộng và thoáng mát làm phòng khách, thể hiện sự hiếu khách của gia chủ. Căn hộ còn được giải quyết việc nếu có ông bà ở dưới quê lên chơi với hệ tủ liên kết với bộ giường nâng hạ thông minh khá gọn gàng nhưng không làm giảm đi độ tinh tế của không gian khách. Cạnh phòng khách là phòng ăn được sắp xếp chung một không gian vừa tiết kiệm diện tích lại vừa thuận tiện khi sử dụng.

Bộ bàn ăn 4 ghế.

Phòng khách trẻ trung với gam màu trắng và sồi.

Hệ tủ có liên kết bộ giường nâng hạ thông minh.
Hai phòng ngủ có diện tích nhỏ nằm về 2 phía và cách nhau khoảng không gian khách và ăn. Phòng ngủ master được sử dụng giường hộp liên kết tủ quần áo.
Còn phòng ngủ của bé trai được cải tạo từ khu vực ban công đã cơi nới. Phòng được quay vách ngăn bằng tôn bên ngoài và tấm vách ngăn bên trong để giảm tải trọng cho khu vực cơi nới mà vẫn đảm bảo độ an toàn.
Màu sắc tổng thể của phòng ngủ sử dụng những gam màu tươi sáng giúp cho không gian có cảm giác rộng rãi, thoáng mát hơn.

Phòng ngủ master với hệ giường hộp liên kết tủ quần áo cánh lùa.

Bộ bàn phấn nhỏ có thể gấp gọn.

Phòng ngủ bé trai với mảng tường trang trí và décor dễ thương.
Hy vọng với phương án bố trí của Nhà Hay sẽ đáp ứng được tiện nghi cũng như nhu cầu sinh hoạt của bạn và gia đình.